
地埋式一體化污水處理設備操作規程? ? ? ?地埋式一體化污水處理設備是采用把一體化污水處理設備埋入地表以下的安裝方式,所以稱之為地埋式

溶氣浮機作為現在污水處理設備除油污重要的設備,在近幾年被廣泛使用,也被用戶廣泛認可,今天帶大家一起了解一下

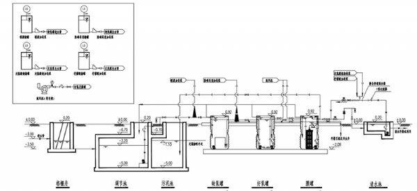
醫院一體化污水處理設備日處理量250噸方案項目名稱:醫療污水處理工程方案設計規模根據甲方提供資料:日處理量:250T/D:2)設計水質和排訪放標準根據甲方提供資

污水處理工藝的選擇? ? ? ?污水處理常用的生化處理工藝主要有厭氧處理工藝、水解酸化工藝和好氧處理工藝,現將各種處理方法的特點陳述如下

MBR一體化污水處理設備使用前應該檢查哪些地方?當污水處理系統一次啟動或長期停運后再次重新啟動的時候,必須

地埋式污水處理設備在使用的過程中,隨著時間的延遲,和使用年限的增長,設備出現小故障,小問題是在所難免的,那

? ? ? ?一體化污水處理設備工作原理? ? ? ?一體化污水處理設備是一種特別有效的污水處理裝備,鑫澤智盛是

一體化污水處理設備作為現在污水處理設備的首產品,非常受環保行業的人喜愛。一體化污水處理設備國家標準是怎么規

設備安裝前的準備設備安裝之前應再一次對其進行質量檢查,如各種螺栓螺母有無松動。焊接件焊縫處有無裂紋或氣孔等缺陷。燃氣、潤滑油及水、氣的儲量及管道接頭是否牢固,有