2022-11-11一體化污水處理設備工作原理
一體化污水處理設備是一種特別有效的污水處理裝備,鑫澤智盛是在借鑒國內外污水領域先進經驗的基礎上,經過水質工程部門科學研究和實踐而制成的。
通常情況下,一體化污水處理設備的材料主要是碳鋼防腐鋼板。據了解,一體化污水處理設備的目的是在生活污水和工業有機污水經設備凈化后,滿足區域或工業的指定污水排放要求??蓱糜谵r村污水、住宅小區、城鎮污水、酒店、政府機關、船舶、辦公樓、餐廳、軍事單位、旅游景區等生活污水相關領域。
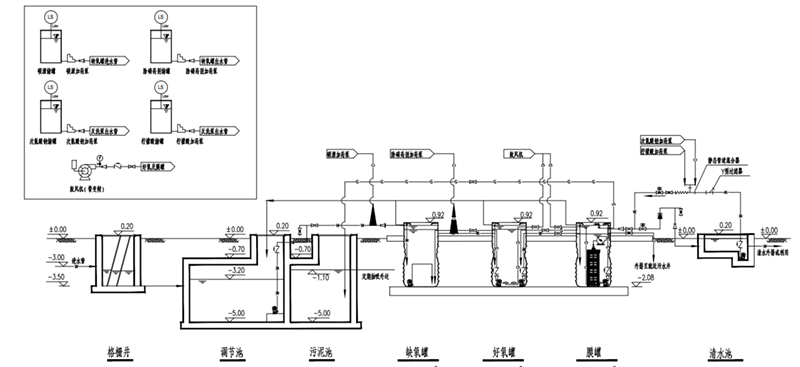
一體化污水處理設備主要依靠AO生物工藝。一級過濾器中污水的有機濃度相對較高。此時,微生物會在缺氧環境中將污水中的有機氮轉化為NH3-N。同時,有機碳被用作電子供體,部分NH3-N和有機氮結合形成新的細胞物質。因此:一級過濾器不僅具有較高的有機物去除功能,而且可以減少后續好氧池的工作量。
一體化污水處理設備工作原理圖

好氧微生物和自養細菌主要用于○級過濾器,利用有機生物分解在空氣中產生無機碳或二氧化碳,將污水中的氨氮分解為NO3-N/NO2-氮。O級槽中的出水部分可以回流到A級槽中,A級過濾器設有電子受體,利用反硝化作用終完成污水中氨污染的去除。
我們需要將一體化污水處理設備放置在平坦的地面上,同時我們需要準備一塊類似設備外觀的混凝土作為基礎。地基必須平整。如果污水處理設備被掩埋,則基礎必須小于或等于設備標高,雨天不會積水。為了防止設備上浮,必須在基礎上埋設抗浮環。

一體化污水處理設備外觀
以上內容就是小編為您整理的有關一體化污水處理設備運行原理的相關內容,這里整理的只是一個工藝,一小部分的內容,如果您需要了解更多的想關內容、可以聯系我們的網站負責人,我們會安排給您專業的銷售技術人員給您更滿意的答復。也希望能夠跟您形成長久的合作關系,共同進步,共求發展。歡迎您來我廠考察合作!
